Palace Auctions Logo

Freehold Land for Sale in Staines-Upon-Thames, TW19

Guide price £25,000

Type of Sale

Auction

Key Features

  • Excellent Transport Links
  • Long Term Future Development Potential
  • Picturesque Location in Old Windsor
  • Sizeable Freehold Parcel of Grassland
  • Transparent Auction Process
  • Versatile Early Investment Opportunity

Description

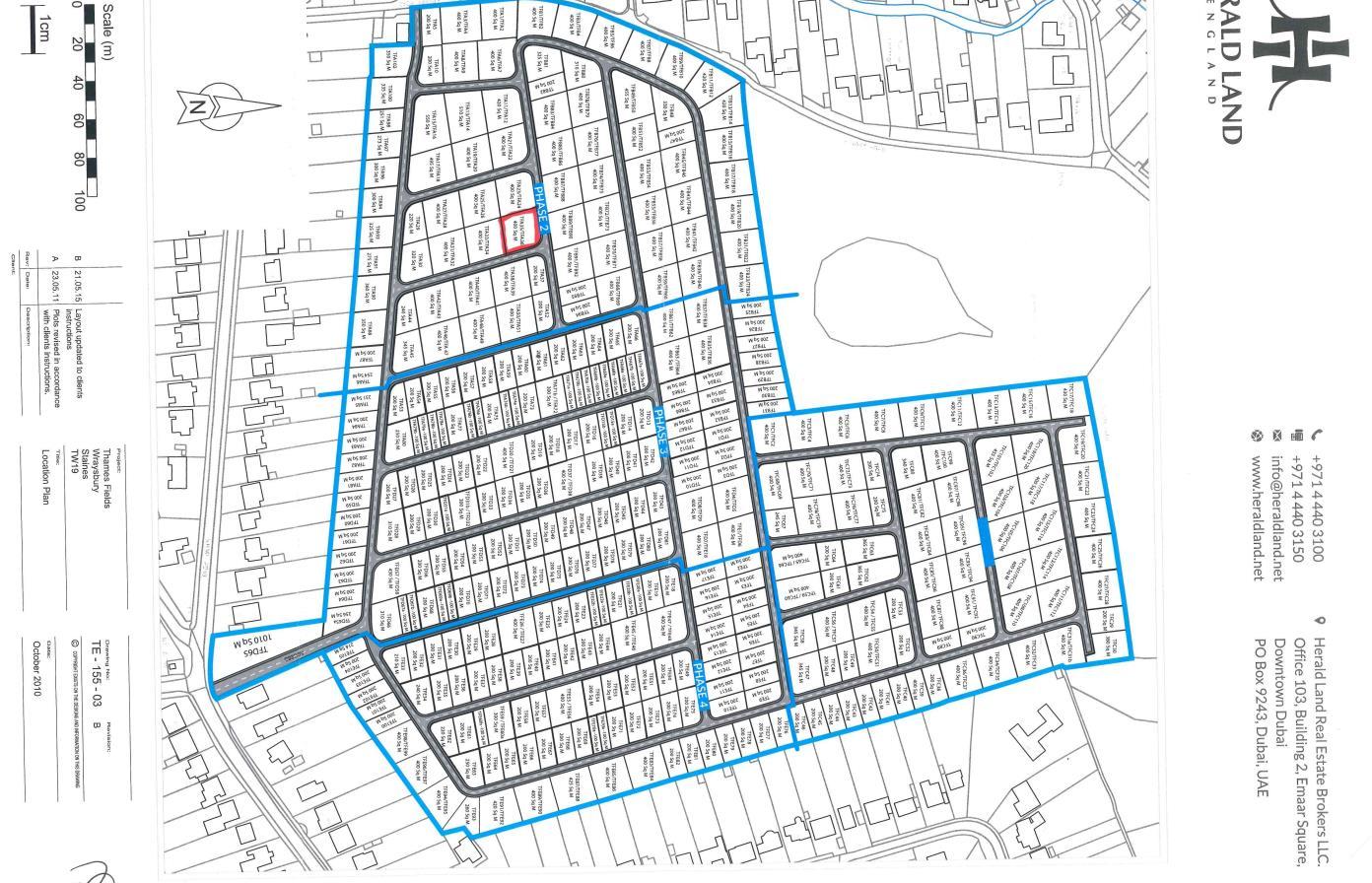
Plots TFA35 & TFA36 Wharf Road, Staines-Upon-Thames, TW19 5JL Freehold parcel of amenity land of 400 sq m (0.0988 acres/0.04 hectares) – Full Vacant Possession For sale by Auction – Terms & Conditions Apply, Enquire for more details. Considering offers prior to auction. Description: A broadly rectangle parcel of grassland, mainly level, and accessed via a public footpath from Wharf Road. The plot is measuring at approximately 400 sq m (0.0988 acres/0.04 hectares) Subject to Measurement Survey Planning: It is considered that there may be future development potential on the site however interested parties must rely on their own enquires to the local planning authority Royal Borough of Windsor and Maidenhead planning department www.planning.org.uk/lpa/rbwm Location: Situated approximately 5 miles North West from the historic town of Windsor which benefits from easy access routes to central London Via M4. The site is located within a picturesque residential area known as Old Windsor. The parcel of land is located opposite to the junction of Coppice Drive and Wharf Road. This is a sought after commuter area and conveniently located to local amenities as well as public transport Sunnymeads and Datchet overland stations providing continuous links to London Waterloo Station with a journey time of approximately 60 minutes Tenure: Freehold   BUYER’S PREMIUM Applies under the fall of the hammer. The purchaser shall pay 10% deposit. Plus, in addition, a buyer’s premium of 2% of the sale price, a minimum of £4,000 + VAT upon exchange of the contract. When registering to bid with us we will require 2 forms of ID (Passport, Driving Licence) to fit in line with the Anti-Money Laundering Act. https://www.owpc.co.uk/ https://www.rbwm.gov.uk/home/planning

Get in touch

Tom Barrett Palace Auctions Director Company Director/Sales Director

Location

Plots of land TFA35 & TFA36 Wharf Road TW19 5JQ ///shin.pardon.quiz

Map

Street View

Share this property

Copy

Or share with

Important Notices & Guidance Notes

Important notices

Pre-registration approval to bid, guide prices, reserves, additional charges and other matters.

Pre-registration approval to bid Palace Auctions now require all bidders who wish to bid at our Auctions to register. All checks required by current anti-money laundering legislation must be satisfactorily completed as part of this process before prior approval to bid will be given.

Please use the links on our website to pre-register. Following approval to bid, the buyer named in your registration cannot be changed without the consent of the auctioneers.

Guide Prices

A guide price (to include a range of prices), is not an indication of the anticipated eventual selling price or a valuation; it is an indication of the minimum price ( “the Reserve” ) at which (or range of prices within which) the seller might be prepared to sell. The eventual sale price can and frequently does, exceed the guide price.

Where a range is given, the Reserve will sit within that range and will not exceed the top end of the range. Where a single figure Guide Price is given, the Reserve will be within 10%, upwards or downwards, of that figure.

The guide price may be subject to change up to and including the day of the auction. The latest published guide price (or range of prices) is displayed on our website, and you should check the website regularly for updates and on the day of the auction.

All guide prices are quoted “subject to contract”.

Please note the guide price for the Lot does not include: – any Buyers’ Fee charged by the auctioneers; – VAT on the sale price; – SDLT or any other Government taxes.

Additional costs and fees charged by the seller or third parties that might apply to some Lots and/or some buyers.

If a guide price is listed as “TBA”, it means no guide price has been set at present. Please do call our office about this. The guide price, or range of prices, will be published online immediately it becomes available and you should check the auction website regularly for updates and on the day of the auction.

Reserve Prices

The reserve price is the minimum price at which the Lot can be sold.

Whilst every effort is made to ensure that the advertised guide prices are up to date. it is possible that the reserve price set for any Lot may exceed the previously quoted guide price. This is because the seller may fix the final reserve price just before the Lot is offered for sale and you should check the website regularly for updates and on the day of the auction.

Palace Auctions, Residential and Commercial Auctions. Our content is meticulously curated by our seasoned professionals, specifically tailored for discerning property buyers. Our platform is best suited for experienced institutional or business buyers, as well as individuals equipped with the necessary knowledge and expertise to make informed purchasing decisions. We deal in properties that come with their own unique set of risks, which our sophisticated buyers understand. If you’re uncertain about meeting these prerequisites, we recommend seeking independent advice or reaching out to us directly.”

Buyers Premium 

A buyer’s premium is an additional charge that successful bidders are required to pay on top of their final bid price at a property auction. This fee is typically a percentage of the final bid and is paid directly to the auction house. It serves as a kind of commission for the auctioneer’s services. The exact percentage can vary depending on the auction house. At Palace Auctions our buyers premium on Property (Real Estate sales) is normally £5000 plus vat. It is usually clearly stated in the auction’s terms and conditions. It’s crucial for bidders to factor in the buyer’s premium when determining their maximum bid, as it significantly affects the total cost of the property.

Standard Contract and Administration fees and additional charges (every sale or purchase). 

For each Lot, a documentation charge / Fee is payable on the fall of the hammer to Palace Auctions as follows:

Residential Auctions – Lots sold for £10,000 or more: Buyers’ Fee of £1,500 inclusive of VAT.

Lots sold for less than £10,000: Buyers’ Fee of £1000 inclusive of VAT.

Commercial Properties – All Lots: Buyers Fee £1,000 excluding VAT

Additional charges and fees might be charged by the seller and/or other third parties. You are strongly advised to read the Special Conditions of Sale for the Lot prior to bidding to check for any additional charges and fees and to check the addendum which might also (but does not always) contain details of such amounts.

VAT may be chargeable in addition to the sale price for the Lot. The auctioneer will announce this and will be contained within the particulars.

Other Matters

Please note that Lots may be sold or withdrawn at any time prior to auction.

Please note that the amount of Bidder Security (payable on application to bid at the auction) and the Buyer’s Fee may be varied from the standard amounts quoted upon or website or by a member of our sales team. So please check.

Please refer to the addendum, the Particulars and/or the conditions of sale.

Mapping data licensed from Ordnance Survey with the permission of the Controller of Her Majesty’s Stationery Office. © Crown Copyright. All rights reserved. Licence number 100022432. Location plans are reproduced from the Ordnance Survey mapping with the permission of Ordnance Survey on behalf of the Controller of Her Majesty’s Stationery Office, © Crown copyright and Database Rights 2018 OS 100060020

The plans and photographs shown in the catalogue are included in order to assist you in locating the Lot in question. They are not to be taken as drawn to scale and any arrows on plans or photographs are merely to assist you in finding the Lot, not for the purpose of indicating legal boundaries or which direction the lot is facing.

The Auctioneers do not warrant or represent that any plans or photographs show the up-to-date position with regard to occupiers either for the Lot or for any other properties shown in such plans or photographs.

Reset password

Enter your email address and we will send you a link to change your password.

Get started with your account

to save your favourite homes and more

Sign up with email

Get started with your account

to save your favourite homes and more

By clicking the «SIGN UP» button you agree to the Terms of Use and Privacy Policy

Create an agent account

Manage your listings, profile and more

Phone

Buyers will use it to contact you.

By clicking the «SIGN UP» button you agree to the Terms of Use and Privacy Policy

Create an agent account

Manage your listings, profile and more

Sign up with email