Palace Auctions Logo
Lot TBG / ERS 8000

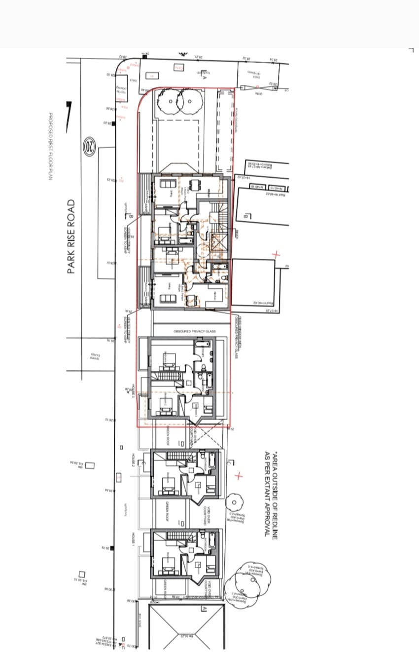
Forest Hill Land Development – 9 Units £4.42M GDV

Guide price £1,350,000

Type of Sale

Gross Development Value (GDV): £4,420,000 Site Area: 0.3 Hectares (3,000 m²) Total GIA: 664 m²

Key Features

  • 1 × commercial unit
  • 1 × three-bed house
  • 2 × two-bed houses
  • GDV per m² of GIA: £6657 Projected gross profit of £3.07 million (227.4% ROI)
  • Mixed-use scheme: 5 × one-bed flats
  • Planning permission approved for 9 residential units Pre-commencement conditions fully discharged
  • Prime Forest Hill SE23 location with excellent transport links
  • Site ready for immediate construction start
  • Vacant possession upon completion

Description

Discover this prime 0.3 hectare Forest Hill development land SE23 with full planning for nine dwellings and a commercial unit. Offers in excess of £1.35 million deliver a 227% ROI on a £4.42 million GDV. Site is ready to build with vacant possession on completion.

Introduction

Discover the Forest Hill development land SE23 opportunity, a 0.3 hectare site with full planning permission for nine dwellings and a commercial unit. With pre-commencement conditions discharged and vacant possession upon completion, this construction-ready site invites offers in excess of £1.35 million, delivering a Gross Development Value of £4.42 million.

Investment Overview

Savvy investors and developers will appreciate:
  • 227.4% ROI potential, equating to a gross profit of £3.07 million
  • Average GDV per unit of £491,111
  • GDV per m² of GIA at £6,657
  • 69.5% profit margin on GDV

Development Details

Approved plans cover:
  • Five one-bedroom flats (GIA 370 m²)
  • Two two-bedroom houses (GIA 200 m²)
  • One three-bedroom house (GIA 80 m²)
  • One commercial unit (GIA 14 m²)
All pre-commencement conditions are discharged. The Community Infrastructure Levy of £40,761.70 is accounted for and no S106 contributions apply.

Location & Transport

Positioned in SE23, the site offers outstanding connectivity:
  • Forest Hill Station: 0.5 mi to London Bridge in 12 minutes
  • Honor Oak Park Station: 0.7 mi to central London on the Overground
  • A205 South Circular: swift road link across south London
Local amenities include independent shops, cafes, Dulwich College and the Horniman Gardens.

Ready to Build & Financials

Vacant possession upon completion and full planning clearance ensure a smooth development process. A 3% finder’s fee applies. Even after estimated construction costs (£2,500/m²), the project sustains a 43% realistic ROI, significantly outperforming typical London land investments.

Investment Summary

Metric Value
Purchase Price £1,350,000
Gross Development Value (GDV) £4,420,000
Gross Profit £3,070,000
Projected ROI 227.4%
Profit Margin 69.5%
Total Units 9
Average GDV per Unit £491,111
GDV per m² of GIA £6,657

Contact & Viewing

Arrange a site visit or request full legal and planning packs: Palace Auctions Ltd Email: sales@palaceauctions.com Tel: +44 (0) 207 101 3647 Office: (Mon–Fri, 9 am–5 pm)   Internal External

Get in touch

Edward Swindells Auctioneer Consultant Auctioneer & Valuer

Map

Share this property

Copy

Or share with

Important Notices & Guidance Notes

Important notices

Pre-registration approval to bid, guide prices, reserves, additional charges and other matters.

Pre-registration approval to bid Palace Auctions now require all bidders who wish to bid at our Auctions to register. All checks required by current anti-money laundering legislation must be satisfactorily completed as part of this process before prior approval to bid will be given.

Please use the links on our website to pre-register. Following approval to bid, the buyer named in your registration cannot be changed without the consent of the auctioneers.

Guide Prices

A guide price (to include a range of prices), is not an indication of the anticipated eventual selling price or a valuation; it is an indication of the minimum price ( “the Reserve” ) at which (or range of prices within which) the seller might be prepared to sell. The eventual sale price can and frequently does, exceed the guide price.

Where a range is given, the Reserve will sit within that range and will not exceed the top end of the range. Where a single figure Guide Price is given, the Reserve will be within 10%, upwards or downwards, of that figure.

The guide price may be subject to change up to and including the day of the auction. The latest published guide price (or range of prices) is displayed on our website, and you should check the website regularly for updates and on the day of the auction.

All guide prices are quoted “subject to contract”.

Please note the guide price for the Lot does not include: – any Buyers’ Fee charged by the auctioneers; – VAT on the sale price; – SDLT or any other Government taxes.

Additional costs and fees charged by the seller or third parties that might apply to some Lots and/or some buyers.

If a guide price is listed as “TBA”, it means no guide price has been set at present. Please do call our office about this. The guide price, or range of prices, will be published online immediately it becomes available and you should check the auction website regularly for updates and on the day of the auction.

Reserve Prices

The reserve price is the minimum price at which the Lot can be sold.

Whilst every effort is made to ensure that the advertised guide prices are up to date. it is possible that the reserve price set for any Lot may exceed the previously quoted guide price. This is because the seller may fix the final reserve price just before the Lot is offered for sale and you should check the website regularly for updates and on the day of the auction.

Palace Auctions, Residential and Commercial Auctions. Our content is meticulously curated by our seasoned professionals, specifically tailored for discerning property buyers. Our platform is best suited for experienced institutional or business buyers, as well as individuals equipped with the necessary knowledge and expertise to make informed purchasing decisions. We deal in properties that come with their own unique set of risks, which our sophisticated buyers understand. If you’re uncertain about meeting these prerequisites, we recommend seeking independent advice or reaching out to us directly.”

Buyers Premium 

A buyer’s premium is an additional charge that successful bidders are required to pay on top of their final bid price at a property auction. This fee is typically a percentage of the final bid and is paid directly to the auction house. It serves as a kind of commission for the auctioneer’s services. The exact percentage can vary depending on the auction house. At Palace Auctions our buyers premium on Property (Real Estate sales) is normally £5000 plus vat. It is usually clearly stated in the auction’s terms and conditions. It’s crucial for bidders to factor in the buyer’s premium when determining their maximum bid, as it significantly affects the total cost of the property.

Standard Contract and Administration fees and additional charges (every sale or purchase). 

For each Lot, a documentation charge / Fee is payable on the fall of the hammer to Palace Auctions as follows:

Residential Auctions – Lots sold for £10,000 or more: Buyers’ Fee of £1,500 inclusive of VAT.

Lots sold for less than £10,000: Buyers’ Fee of £1000 inclusive of VAT.

Commercial Properties – All Lots: Buyers Fee £1,000 excluding VAT

Additional charges and fees might be charged by the seller and/or other third parties. You are strongly advised to read the Special Conditions of Sale for the Lot prior to bidding to check for any additional charges and fees and to check the addendum which might also (but does not always) contain details of such amounts.

VAT may be chargeable in addition to the sale price for the Lot. The auctioneer will announce this and will be contained within the particulars.

Other Matters

Please note that Lots may be sold or withdrawn at any time prior to auction.

Please note that the amount of Bidder Security (payable on application to bid at the auction) and the Buyer’s Fee may be varied from the standard amounts quoted upon or website or by a member of our sales team. So please check.

Please refer to the addendum, the Particulars and/or the conditions of sale.

Mapping data licensed from Ordnance Survey with the permission of the Controller of Her Majesty’s Stationery Office. © Crown Copyright. All rights reserved. Licence number 100022432. Location plans are reproduced from the Ordnance Survey mapping with the permission of Ordnance Survey on behalf of the Controller of Her Majesty’s Stationery Office, © Crown copyright and Database Rights 2018 OS 100060020

The plans and photographs shown in the catalogue are included in order to assist you in locating the Lot in question. They are not to be taken as drawn to scale and any arrows on plans or photographs are merely to assist you in finding the Lot, not for the purpose of indicating legal boundaries or which direction the lot is facing.

The Auctioneers do not warrant or represent that any plans or photographs show the up-to-date position with regard to occupiers either for the Lot or for any other properties shown in such plans or photographs.

Reset password

Enter your email address and we will send you a link to change your password.

Get started with your account

to save your favourite homes and more

Sign up with email

Get started with your account

to save your favourite homes and more

By clicking the «SIGN UP» button you agree to the Terms of Use and Privacy Policy

Create an agent account

Manage your listings, profile and more

Phone

Buyers will use it to contact you.

By clicking the «SIGN UP» button you agree to the Terms of Use and Privacy Policy

Create an agent account

Manage your listings, profile and more

Sign up with email